- Тип духовки
- Независимая
- Способ подключения
- Электрический
- Высота (см)
- 45.5
- Ширина (см)
- 59
- Глубина (см)
- 54
- Габариты, ВхШхГ (см)
- 45.5х59х54
- Размеры ниши для встраивания, ВхШхГ (см)
- 45х56х55
- Размеры в упаковке, ВхШхГ (см)
- 59х66х69
- Количество автоматических программ
- 40
- Функция памяти
- Да
- Специальные возможности
- Размораживание продуктов
- Специальные возможности
- Функция приготовления SousVide
- Режимы:
- Конвекция
- Да
- Регенерация
- Да
- Брожение
- Да
- Низкотемпературное приготовление
- Да
- Приготовление на гриле:
- Гриль
- Да
- Тип гриля
- Электрический
- Большой гриль
- Да
- Другие режимы
- Горячий воздух + влажность 100 %
- Другие режимы
- Горячий воздух + влажность 80 %
- Другие режимы
- Горячий воздух + влажность 60 %
- Другие режимы
- Горячий воздух + влажность 30 %
- Другие режимы
- Горячий воздух + влажность 0 %
- Другие режимы
- Гриль большой площади, ступень 1 + влажность
- Другие режимы
- Гриль большой площади, ступень 2 + влажность
- Другие режимы
- Гриль большой площади + конвекция
- Объем (л)
- 50
- Покрытие внутренней камеры
- Нержавеющая сталь
- Освещение духовки
- Светодиодное
- Дизайн
- Серия 400
- Цвет
- Антрацит
- Дверца духовки
- Навесная левая
- Тип управления
- Электронное
- Элементы управления
- Поворотные регуляторы
- Дисплей
- Да
- Тип дисплея
- TFT-дисплей
- Индикация
- фактической температуры в духовке
- Таймер
- Да
- Электронный контроль температуры
- Да
- Регулировка температуры (С)
- От 30 до 230
- Комплектация
- Термощуп
- Количество направляющих для противней
- 4
- Дополнительная комплектация
- Набор CL S10 040 с 4 картриджами для очистки приобретается отдельно
- Дополнительная комплектация
- Шланг для подвода воды, диаметр подключения ¾" (26,4 мм)
- Дополнительная комплектация
- Шланг для отвода воды (ø 24 mm) длина 3.0 м
- Очистка духовки
- Традиционная
- Функция автопиролиза
- Да
- Функция очистки от накипи
- Да
- Вес нетто (кг)
- 50.006
- Класс энергопотребления
- A
- Мощность подключения (кВт)
- 3.1
- Мощность гриля (кВт)
- 2
- Напряжение (В)
- 220-240
- Сила тока (А)
- 16
- Частота тока (Гц)
- 50
- Длина сетевого кабеля (см)
- 1.8
- Защита от детей
- Да
- Охлаждение/вентиляция
- Да
- Дополнительные параметры
- Сенсорное открытие дверцы
- Дополнительные параметры
- Стационарное подключение только к холодной воде
- Дополнительные параметры
- Программа сушки
- Дополнительные параметры
- 2 LED лампы
- Дополнительные параметры
- Сенсорный текстовый TFT-дисплей
- Дополнительные параметры
- Персонализация автоматических программ
- Дополнительные параметры
- Кнопка для вызова информации с указаниями по обслуживанию
- Дополнительные параметры
- Дверь открывается в сторону, угол открытия до 180°
- Дополнительные параметры
- Функция осаждения пара
- Дополнительные параметры
- Паровой удар
- Дополнительные параметры
- Трехточеченый температурный щуп с автоматическим отключением и отображением времени
- Дополнительные параметры
- Таймер приготовления, таймер выключения, краткосрочный и долгосрочный таймер
- Дополнительные параметры
- Автоматическое определение точки кипения
- Дополнительные параметры
- Индикатор насыщения фильтра для очистки воды от накипи (при подключении GF 111 100)
- Дополнительные параметры
- Для подключения к Home Connect, необходимо соединить прибор с роутером при помощи LAN-кабеля (рекомендуется) или через WiFi
- Дополнительные параметры
- Защита на время отпуска
- Дополнительные параметры
- Охлаждение корпуса прибора с термозащитой
- Дополнительные параметры
- Съемный натяжной фильтр
- Дополнительные параметры
- Демо-программа очистки
- Дополнительные параметры
- Запрещается устанавливать другие электронные приборы над BS
- Дополнительные параметры
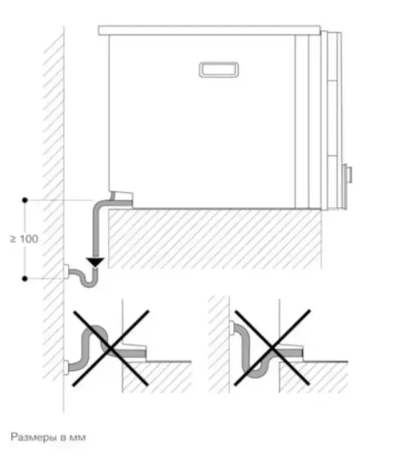
- Шланг для отвода воды должен всегда располагаться ниже уровня установки прибора. Вывод для слива должен быть расположен как минимум на 100 мм ниже уровня прибора
- Дополнительные параметры
- Шланг для подвода воды может быть удлинен
- Дополнительные параметры
- Длина шланга для отвода воды не должна превышать 5 метров
- Дополнительные параметры
- Точка подключения прибора к водопроводу должна быть легкодоступна и не должна располагаться непосредственно за прибором
- Дополнительные параметры
- Точка подключения слива воды (сифон) должна быть легкодоступна и не должна располагаться непосредственно за прибором
- Дополнительные параметры
- При жесткости воды более 7 dH обязательна установка фильтра для защиты от накипи GF 111 100
- Дополнительные параметры
- Фасад прибора выступает на 47 мм от уровня мебели
- Дополнительные параметры
- Между прибором и фасадом соседних шкафов необходимо предусмотреть выступ
- Дополнительные параметры
- При установке в углу необходимо обеспечить угол открытия дверцы минимум на 90°
- Дополнительные параметры
- Розетка для подключения прибора должна располагаться за пределами ниши для встраивания
- Дополнительные параметры
- Панель управления снизу
Доставка завтра - 390 ₽
Gaggenau BS475102 — духовой шкаф, комбинированный с пароконвектоматом объемом 50 л. Имеет множество различных режимов нагрева, среди которых сувид, большой гриль, брожение, разморозка, регенерация, низкотемпературное приготовление. Эксплуатация шкафа полностью безопасна благодаря функциям охлаждения прибора с термозащитой, блокировки от детей и защиты на время отпуска.
- Программа сушки
- Духовка из нержавеющей стали
- Съемный натяжной фильтр
Для покупки товара в нашем интернет-магазине выберите понравившийся товар и добавьте его в корзину. Далее перейдите в Корзину и нажмите на «Оформить заказ» или «Быстрый заказ».
Когда оформляете быстрый заказ, напишите ФИО, телефон и e-mail. Вам перезвонит менеджер и уточнит условия заказа. По результатам разговора вам придет подтверждение оформления товара на почту или через СМС. Теперь останется только ждать доставки и радоваться новой покупке.
Оформление заказа в стандартном режиме выглядит следующим образом. Заполняете полностью форму по последовательным этапам: адрес, способ доставки, оплаты, данные о себе. Советуем в комментарии к заказу написать информацию, которая поможет курьеру вас найти. Нажмите кнопку «Оформить заказ».
Оплачивайте покупки удобным способом. В интернет-магазине доступно 3 варианта оплаты:
- Наличные при самовывозе или доставке курьером. Специалист свяжется с вами в день доставки, чтобы уточнить время и заранее подготовить сдачу с любой купюры. Вы подписываете товаросопроводительные документы, вносите денежные средства, получаете товар и чек.
- Безналичный расчет при самовывозе или оформлении в интернет-магазине: карты Visa и MasterCard. Чтобы оплатить покупку, система перенаправит вас на сервер системы ASSIST. Здесь нужно ввести номер карты, срок действия и имя держателя.
- Электронные системы при онлайн-заказе: PayPal, WebMoney и Яндекс.Деньги. Для совершения покупки система перенаправит вас на страницу платежного сервиса. Здесь необходимо заполнить форму по инструкции.
Экономьте время на получении заказа. В интернет-магазине доступно 4 варианта доставки:
- Курьерская доставка работает с 9.00 до 19.00. Когда товар поступит на склад, курьерская служба свяжется для уточнения деталей. Специалист предложит выбрать удобное время доставки и уточнит адрес. Осмотрите упаковку на целостность и соответствие указанной комплектации.
- Самовывоз из магазина. Список торговых точек для выбора появится в корзине. Когда заказ поступит на склад, вам придет уведомление. Для получения заказа обратитесь к сотруднику в кассовой зоне и назовите номер.
- Постамат. Когда заказ поступит на точку, на ваш телефон или e-mail придет уникальный код. Заказ нужно оплатить в терминале постамата. Срок хранения — 3 дня.
- Почтовая доставка через почту России. Когда заказ придет в отделение, на ваш адрес придет извещение о посылке. Перед оплатой вы можете оценить состояние коробки: вес, целостность. Вскрывать коробку самостоятельно вы можете только после оплаты заказа. Один заказ может содержать не больше 10 позиций и его стоимость не должна превышать 100 000 р.
Дополнительная вкладка, для размещения информации о магазине, доставке или любого другого важного контента. Поможет вам ответить на интересующие покупателя вопросы и развеять его сомнения в покупке. Используйте её по своему усмотрению.
Вы можете убрать её или вернуть обратно, изменив одну галочку в настройках компонента. Очень удобно.
